162 Acre Industrial and Commerce Planned Development
75,000 Square Feet Centrally Located between Savannah and Charleston Seaports Adjacent to Interstate 95
The Hardeeville State-of-the-Art Commercial Park
Explore additional details about the strategically situated 162-acre industrial and commerce park, conveniently adjacent to I-95, in a thriving business district.
Space for Expansion
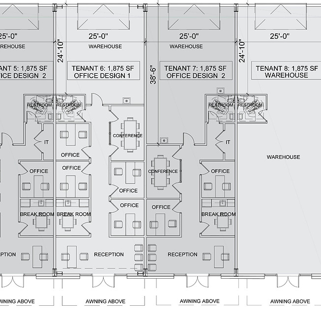
Our expansion opportunity not only provides the canvas for your business's growth but also includes access to versatile warehouse spaces. Whether you require additional storage, distribution capabilities, or a place to optimize your logistics, our warehouse options offer the flexibility and scalability your business needs.
Robust Infrastructure
Our infrastructure includes 6" water lines (5mm gpd), an 8" waste water system (.4mm gpd), and 6" natural gas lines. It offers insulated facilities with air conditioning, a 12kV electric distribution, and fiber optic communications. With a nearby fire department and an ISO rating, it prioritizes safety and convenience for residents and businesses.
Transportation & Accessibility
With three major interstates (I-95, I-16, I-26) intersecting the region and a CSX rail system, transportation is easily accessible. Commercial airports, including Savannah (15 minutes), Hilton Head (30 minutes), Charleston (90 minutes), and Columbia (140 minutes), provide convenient air travel options.
Warehouse Customization
We provide customizable spaces that can be tailored to suit your specific requirements. From configuring the layout of your warehouse or manufacturing space to incorporating specialized equipment or infrastructure, we work closely with you to create a space that supports your business operations.
Hardeeville Commerce Park Advantages

The Hardeeville Commerce Park

Contact us today to schedule a property tour
We look forward to discussing your business' requirements and finding a property within the Storage Technologies park that meets your needs and goals.





